Ver calle Doctor Fleming en Google Maps.

Situada en la zona Mayuelo, se inicia en la plaza César Augusto y finaliza en la calle Gaspar Becerra.

Anteriormente se llamó calle General Queipo de Llano.

Acerca de ...

En Wikipedia: Alexander Fleming.

11-02-1937. Apaa. Felicitación al general Queipo de Llano.

Defiende el Sr. Alcalde una moción proponiendo se den los nombres de General Franco al Parque de la República, General Sanjurjo a la calle de Pablo Iglesias, plaza de Calvo Sotelo a la de Fermín Galán, calle de Primo de Rivera a la de García Hernández, y calle de General Mola a la de San Julián, unos precursores y otros paladines del glorioso Movimiento Nacional, todos ellos defensores de las verdaderas libertades patrias y acreedores a la gratitud de todos los buenos españoles. La Comisión Gestora acuerda por aclamación de los cinco señores gestores presentes en la reunión aprobar la anterior moción del Sr. Alcalde.

El Sr. Martínez Luengo alaba la expresada moción de la Alcaldía, y propone se felicite efusivamente al General Queipo de Llano y ejército de su mando, por la brillante conquista de la ciudad de Málaga, propuesta que se aprueba por unanimidad.

09-12-1974. Acpaa p. 3º. Instancia Felipe González, cercar solar.

Obras de entretenimiento. Se concede licencia a D. Felipe González para cercar solar en Queipo de Llano 6, en la forma solicitada y siempre se sea dejando los doce metros de anchura calle, tomando desde el edificio de enfrente.

26-02-1980. Apaa. p. 6º. Urbanización, redacción proyecto técnico, imposición contribuciones especiales.

Examinada que ha sido la propuesta formulada por las Comisiones Informativas de Obras y la de Urbanismo estimando esta Corporación la acuciante necesidad de llevar a cabo la ejecución de obras de urbanización y pavimentación de varias calles de la Ciudad que por su deplorable estado y las exigencias del desarrollo urbano deben de ser contempladas como ejecución inmediata y preferente, previa deliberación y por unanimidad de [los miembros de] la Corporación asistentes, se acordó.

Primero. Encargar los proyectos técnicos de pavimentación y urbanización de las siguientes calles:

...

Zona B) 1. Calle Dos de Mayo

...

Zona D) Rectivía

1 calle del Sol

2 calle de El Teleno

3 calle de La Luna

4 calle de Río Duerna

5 calle de Matadero

6 calle de San Juan

7 plaza del Mesón

8 calle de Pantano Villameca

9 calle del Mayuelo

10 calle de La Independencia

11 calle de Río Esla

12 calle de Onésimo Redondo

13 calle de Virgen de Las Candelas

14 calle de General Yagüe

15 calle de General Queipo de Llano

16 calle de HH Estigmatinas y calle Pabellones Majestad

17 Camino del Cubillo y sus travesías

[18]

19 calle de La Maragatería

20 calle de Los Tejeros

21 Nueva

Segundo. Que se lleve a cabo la ejecución de las obras en el plazo más corto posible.

Tercero. Que se impongan contribuciones especiales a satisfacer por los propietarios de inmuebles beneficiados o afectados por las obras en su porcentaje máximo del 90% del coste total de los mismos.

Cuarto. Que se encargue por la Presidencia la redacción de los citados proyectos, al Arquitecto Municipal D. Luis Diego Polo.

27-10-1980. Apaa p. 8º. Modificar proyectos técnicos pavimentación, modificación de materiales.

En ejecución de acuerdo de la Sesión Plenaria anterior que decidió dejar pendiente el tema de modificaciones de proyectos de pavimentación de calles hasta tanto por el Sr. Arquitecto Municipal no se emitiera el correspondiente informe técnico. Emitido que ha sido el día 6-10-80, se da cuenta del mismo que en definitiva no es más que un rol de ventajas e inconvenientes de cada una de las alternativas propuestas.

Como quiera que se señala, que caso de que la votación sea favorable a la modificación, el trabajo de nueva redacción sería considerable, a lo que el Sr. Delfín González argumenta que el cambio no tiene tanta trascendencia toda vez que solamente la calzada es lo que varía.

Volviendo a iniciarse el debate acerca de las cualidades de uno y otro producto para pavimentar, intervine el concejal D. Simplicio Varela para señalar una vez más y zanjando la polémica que bajo ningún concepto sea discutido nunca sobre inconvenientes del aglomerado, sino que lo único que se planteó al margen de cualquiera otra consideración es que el hormigón es mejor.

Por parte de la Presidencia se da cuenta de que la solución lógica al tema debe plantearse al menos de momento en las pavimentaciones de las calles del Barrio de Rectivía que son las que el concejal D. Delfín González hace siempre referencia y consta, asimismo, en el expediente una resolución suscrita por el Presidente de la AA.VV. acreditativa de que en una sesión de la citada Asociación, únicamente el barrio se había pronunciado por tal sistema.

A continuación se procede a la votación nominal arrojando esta el resultado de 13 votos de concejales a favor de la pavimentación con aglomerado en las calles que a continuación se especificarían y un voto en contra perteneciente a D. Simplicio Varela Pérez.

En consecuencia se acuerda instar la modificación de los proyectos realizados y que en lo sucesivo para los que no estén confeccionados todavía se determine la pavimentación con aglomerado en las calles siguientes: calle de San Juan, Pantano Villameca, Río Esla, Mayuelo, Plaza del Mesón, calle del Matadero, Sol, La Luna, de la Majestad B y B, Río Duerna, Los Tejeros, Nueva de Peñicas, Estigmatinas, Onésimo Redondo, General Yagüe, Monte Teleno, Maragatería, Río Órbigo, Mayuelo 2, Independencia, Queipo de Llano, Virgen de las Candelas, plaza César Augusto, Travesía A B C de la Majestad, Cubillo, 3ª travesía Cubillo.

14-06-1982. Apaa p. 3º. Imposición contribuciones especiales.

La Corporación, visto el expediente de aplicación de contribuciones especiales, para financiar las obras municipales que este Ayuntamiento pretende llevar a cabo.

Considerando que tales obras además de atender al interés común o general, benefician especialmente a personas determinadas referidas en los propietarios de inmuebles sitos en los viales de las obras que se pretenden ejecutar, considerando lo dispuesto den los Arts. 23 y siguientes de las Normas Provisionales para la aplicación de las bases de la Ley 41/75, referentes a los Ingresos de las Corporaciones Locales aprobadas por Real Decreto 3250/76 por unanimidad de los miembros de la Corporación asistentes, se acordó:

1º Imponer contribuciones especiales por la ejecución de las obras, cuya relación y presupuesto se expresa:

...

- Pavimentación de las calles La Luna, Río Esla, Independencia, barrio de Las Candelas [General Queipo de Llano, General Yagüe, Onésimo Redondo, Virgen de las Candelas y Plaza César Augusto] y ..., cuyo presupuesto vendrá determinado en la documentación técnica que se redacte.

- Reposición del pavimento con micro-aglomerado en caliente de los viales que se señalan:

...

calle de San Pedro, 1.536.640.

2º Fijar como módulo de reparto los metros lineales de fachada de los inmuebles sitos en los viales afectado o beneficiados por las obras.

3º Fijar la parte del coste de las obras que han de satisfacer las personas propietarias de inmuebles afectados o beneficiados por las obras en lo que resulte de aplicación de los siguientes porcentajes:

a) Construcción o reparación de aceras, el 90% del coste de la obra.

b) Reposición de pavimento con micro-aglomerado en caliente, el 30% del coste de la obra.

c) Pavimentaciones de calles en su primer establecimiento el 90% del coste total de la obra.

4ª Los porcentajes no financiados por contribuciones especiales en el coste de las referidas obras serán satisfechas con cargo a fondos municipales del Presupuesto de Inversión.

14-06-2006. Apaa. Inclusión urbanización en Plan Provincial.

El Pleno del Ayuntamiento por unanimidad de los quince miembros presentes en la sesión, de los diecisiete que de hecho y de derecho componen la Corporación Municipal, acuerda:

Primero.- Solicitar la inclusión en la convocatoria del Plan Provincial de Obras y Servicios, Programa Operativo Local y Fondo de Cooperación Local para el bienio 2007-2008, por orden de preferencia, de las siguientes obras.

3.- Encintado de aceras, pavimentación, red de saneamiento, abastecimiento y alumbrado público en c/Gaspar Becerra, Queipo de Llano y c/Lucillo, cuyo importe de ejecución por contrata asciende a 419.845,08, según memoria valorada redactada por D. José Miguel Luengo Cuadrado, Arquitecto Técnico.

28-03-2007. Cambio denominación.

El pleno del Ayuntamiento de Astorga en su reunión del 28 de marzo de 2007 acordó por unanimidad el cambio de denominación de la calle General Queipo de Llano por el de calle Doctor Fleming, a tenor del dictamen emitido por la Comisión Informativa de Cuentas, Hacienda y Administración en reunión celebrada el día 23.03.2007.

Mayo 2007. Nuevo tramo urbanizado.

Un nuevo tramo de la calle quedó urbanizada. Las nuevas construcciones del final de la calle la dejan con aceras, asfalto e iluminación.

Octubre 2009. Reasfaltado parcial.

El 5 de Octubre se inició una campaña de asfaltado en la que el Ayuntamiento invirtió unos cien mil euros en distintas actuaciones de mejora en función de las necesidades de cada calle.

En concreto en esta calle Dr. Fleming se procedió al reasfaltado parcial de la misma.

Foto Jrf, octubre 2009.

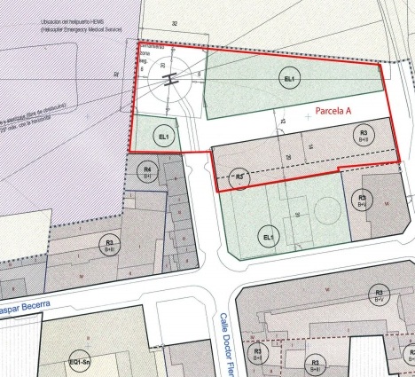
23.05.2019. Apaa p. 2º. Convenio urbanístico de planeamiento para la cesión gratuita de terrenos dotacionales y la determinación de aprovechamiento urbanístico al resto de la parcela, identificada con referencia catastral 24009a013000540000QK, en calle Doctor Fleming, siendo el interés público del convenio la instalación de un helipuerto de emergencias.

medios propios

Por unanimidad de los catorce concejales presentes en la sesión y vistos los informes emitidos por el secretario general, de fecha 14.05.2019 y la arquitecta municipal, de su referencia OTARQ/2019/004, de fecha 08.02.2019, ACUERDA:

Aprobar inicialmente y someter a información pública la propuesta de convenio urbanístico de planeamiento.